1. 草莓视频下载地址,草莓APP在线观看,草莓黄片软件下载,草莓视频成人在线无限观看

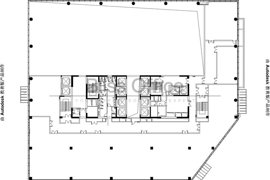
      上海环球都会广场出租899方标准交房

      分享
      16.41 万元/月
      • 单价:6.0元/㎡/天
      • 物业费:35.0元/㎡/月
      899㎡
      建筑面积
      60-100人
      容纳工位
      标准交房
      装修
      • 浦 东-前滩后滩
      • 7号线-后滩
      • 环球都会广场

      房源专属顾问为您服务

      杨亦晗Cassie

      13167276699
      预约看房

      公共交通

      Public transit

      环球都会广场

      浦 东前滩后滩耀元路58号

      网站地图