1. 草莓视频下载地址,草莓APP在线观看,草莓黄片软件下载,草莓视频成人在线无限观看

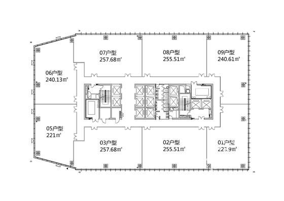
      国华人寿金融大厦出租255方精装家具适合金融

      分享
      5.82 万元/月
      • 单价:7.5元/㎡/天
      • 物业费:32.0元/㎡/月
      255㎡
      建筑面积
      20-30人
      容纳工位
      带装修家具
      装修
      • 浦 东-世纪大道
      • 2号线-世纪大道、4号线-世纪大道、6号线-世纪大道、9号线-世纪大道
      • 国华人寿金融大厦

      房源专属顾问为您服务

      杨亦晗Cassie

      13167276699
      预约看房

      公共交通

      Public transit

      国华人寿金融大厦

      浦 东世纪大道向城路288号

      网站地图