1. 草莓视频下载地址,草莓APP在线观看,草莓黄片软件下载,草莓视频成人在线无限观看

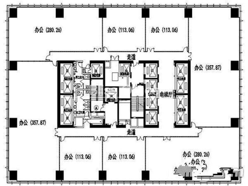
      汇亚大厦写字楼整层2390方标准交房

      分享
      79.97 万元/月
      • 单价:11.0元/㎡/天
      • 物业费:42.0元/㎡/月
      2390㎡
      建筑面积
      250-300人
      容纳工位
      标准交房
      装修
      • 浦 东-陆家嘴
      • 2号线-陆家嘴、14号线-陆家嘴
      • 汇亚大厦

      房源专属顾问为您服务

      杨亦晗Cassie

      13167276699
      预约看房

      公共交通

      Public transit

      汇亚大厦

      浦 东陆家嘴陆家嘴环路1233号

      网站地图