1. 草莓视频下载地址,草莓APP在线观看,草莓黄片软件下载,草莓视频成人在线无限观看

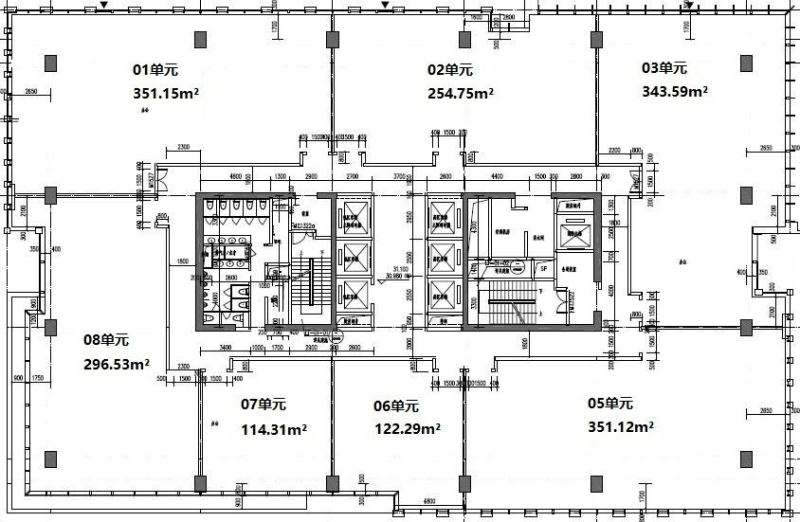
      莘庄旭辉中心883方半层对电梯口自由装修

      分享
      11.82 万元/月
      • 单价:4.4元/㎡/天
      • 物业费:28.0元/㎡/月
      883㎡
      建筑面积
      80-100人
      容纳工位
      标准交房
      装修
      • 闵 行 -七莘路
      • 12号线-七莘路
      • 旭辉莘庄中心

      房源专属顾问为您服务

      江帅军Evan

      13052210023
      预约看房

      公共交通

      Public transit

      旭辉莘庄中心

      闵 行 七莘路秀文路靠近园秀路

      网站地图