1. 草莓视频下载地址,草莓APP在线观看,草莓黄片软件下载,草莓视频成人在线无限观看

      中金上海大厦(中国黄金大厦)
      5.50元/m2/天起

      浦东世博滨江

      浦 东-博成路568号

      13号线-世博大道

      房源专属顾问为您服务

      杨亦晗Cassie

      13167276699

      在租户型

      In Tenant Type

      • 照 片面 积单 价总 价详情

      楼盘照片

      Building photos



      大厦简介

      Building introduction

      • 类型

        写字楼

      • 单层面积

        1700平

      • 总楼层

        17

      • 得房率

        70%

      • 竣工年月

        2019

      • 物业公司

        中国黄金

      • 物业费

        36元/平米•月

      • 层高

        净高2.9米

      • 空调类型

        VAV中央空调系统

      • 电梯

        客梯4部,货梯1部

      • 车位

        地下150个

      • 是否涉外

      中金上海大厦由中国黄金集团有限公司投资建设的中国黄金大厦(又名中金上海大厦)位于上海市浦东新区世博园B片区央企总部聚居区博成路568号,距离中华艺术宫约1公里左右,西邻长清北路和世博文化公园,北临博成路和世博集团大厦,东临中国商飞大厦,南邻博航路和中化大厦,上海轨道交通13号地铁世博大道站1号口设在大厦内的A栋。
       

      中金上海大厦

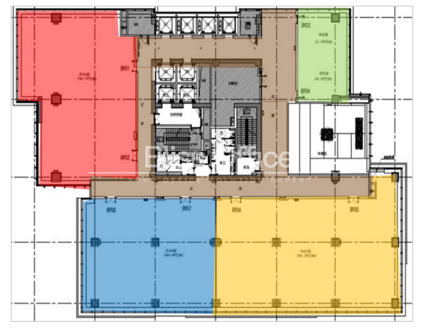
      中金上海大厦分A、B两栋,用地8665.6平,建筑面积67361.2平(其中地上面积43330平,地下24031.2平)容积率5,绿地面积1386平,绿地率16%,道路广场面积1600平,是集商业、办公、餐饮、文化娱乐、智能化为一体的综合性商厦。A座(北楼)共十层,高度50米,单层面积1700平。其中3~9层为商务办公,层高4.4米,10楼为大会议室和多媒体会议室,层高6米。


      目前此栋对外出租面积65平~1700平之间,大小可分割。
      B座共14层,高度70米,单层建筑面积1700~1800平,3~14层为商务办公,层高4.4米,可分割,卢浦大桥行驶车辆可直接看到此大楼。

      租金价格:办公:5.5元~8元/平/天左右,物业费35元

      商业:6.0-10元/平/天左右,物业费45元 

      公共交通

      Public transit

      中金上海大厦(中国黄金大厦)

      浦 东浦东世博滨江博成路568号

      大厦图片

      直接安排看房Bliss Office

      How To Commissin Bliss Office

      网站地图